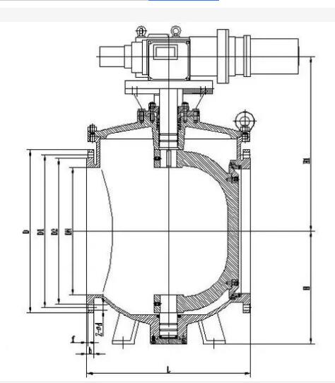
上裝偏心半
球閥和側裝半球閥性能區別上裝式偏心半球閥選型 上海湖泉閥門集團有限公司主營閥門有:截止閥,電動截止閥因堆焊不同合金(或組合球)雙金屬密封副的選配可以用于耐磨、耐腐蝕、耐高溫且要求嚴... 上裝式半球閥與側裝式半球閥對比上裝式電動偏心半球閥體中心軸線與半球中心軸線形成尺寸偏置,且僅在閥體一側設置密封副的閥門.以球體繞閥體中心線作旋轉來達到開啟、關閉的一種閥門...

 對于側裝式球
閥,根據使用場合的不同以及通徑的大小,閥體有整體式與分體式兩種,分體式又分為兩體式(兩片式)與三體式(三片式)。 1、上裝式球閥 上裝式球閥的結構特點是閥體做成整體,...關于偏心半球閥側裝式和上裝式的差別的說明 偏心半球閥按閥芯裝入閥體的方位不同,閥門分為側裝式和上裝式兩種結構形式。這兩種結構形式各有利弊,現簡述如下。 1側裝式結構緊湊,閥體...偏心半球閥有側裝式偏心半球閥和上裝式偏心半球閥之分,偏心半球閥堆焊不同合金(或組合球)雙金屬密封副的選配可以用于耐磨、耐腐蝕、耐高溫等且又要求嚴格密封...
 
	1. 安裝方式不同:上裝偏心半球閥的球體偏心,需要與管道垂直安裝,而側裝閥門可以水平或斜向安裝。
	2. 內部結構不同:上裝偏心半球閥內部結構簡單,球體偏心,只需要與閥桿呈90度夾角開度即可控制介質通斷;而側裝閥門的密封面較多,需要對多個密封面進行控制,內部結構較復雜。
	
		1. 上裝偏心半球閥: 適用于介質粘度較小、顆粒雜質少的管路,比如水、氣、油等介質的控制。
	
		2. 側裝閥門: 適用于介質較差、顆粒多的管路,如化工、冶金、電力等領域。
 
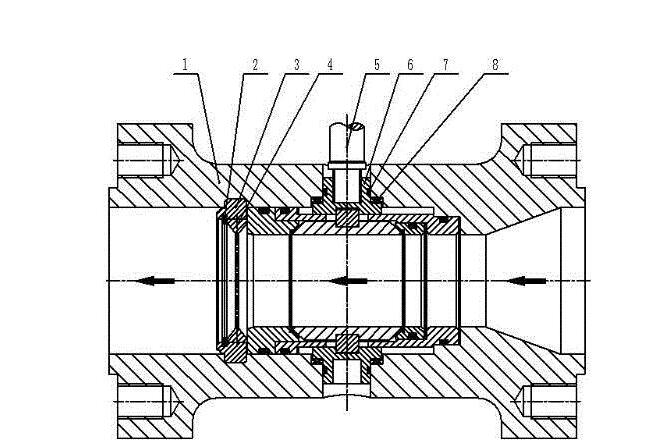
1、其結構采用偏心契緊原理通過傳動機構達到閘緊、調節、關閉的目的,密封副是金屬面環帶硬面接觸 密封,雙偏心結構在開啟時閥芯位于藏球室內,流通截面大,且閥門不被沖刷,關閉時閥芯不被沖刷,開 啟時閥芯球面沿閥座漸進,有效地切除結垢障礙,實現可靠密封。它對兩相混流易結垢固體析出的混流輸 送特別有效
2、閥門的半球用雙金屬,母材上堆焊不同的合金,閥座也作相應堆焊經特殊的處理,密封面組合成防腐 、耐磨、高強度等各種類型,滿足不同場合需求
3、密封嚴密、輸送有害氣體可達零泄露
4、密安裝方法分類:
 
閥門內部零部件從閥門上部進行安裝和拆解的閥門,優點是維修時,無需從管線上拆除,即可更換閥門里的配件。側裝式偏心半球閥 閥門的結構是一體式的,內部零部件是從側面進行安裝和拆解的一種閥門。封副的閥芯留有補償量、當閥做磨損后,關閉時再轉動少許,任能可靠密封,延長了使用壽命。此 外,用戶將壓緊螺母擰掉,調整或更換后閥座仍可用,避免了閥門密封失效后,整臺報廢的弊端
 
偏心半球閥與上裝式偏心半球閥有什么區別: 1:偏心半球閥利用偏心閥體,偏心球體和閥座,閥桿作旋轉運動時在共同軌跡自動定心,關閉過程中越關越緊,完全達到良好的密封目的。桂隆閥門的球體和閥座完全脫離,消除了密封圈的磨損,克服了傳統球體閥座與球體密封面始終磨損的問題,非金屬彈性材料被嵌入金屬座中,閥座金屬面受到良好的保護。本產品特別適用于鋼鐵業,鋁業,纖維,微小固體顆粒,紙漿,煤灰,石油氣等介質。 2:上裝式偏心半球閥的主要功能是在偏心半球閥的基礎上多了一個功能,就是便于在線維修。